+7 (499) 130-55-48
+7 (499) 130-55-48

Project Studio CS Отопление

Project Studio CS Отопление

Программный продукт, предназначенный для проектирования систем отопления зданий и сооружений по отечественным стандартам, в котором объединены расчетная и графическая части проекта.

Все описание
Задачи
Интеллектуальные объекты Project Studio CS Отопление ;
Открытые базы данных ;
Работа с этажами, помещениями и стояками ;
Гидравлический и тепловой расчет. Формирование трехмерной твердотельной модели системы отопления .
Все задачи

Также получить консультацию по программному продукту можете через мессенджеры

О продукте

Специализированное программное обеспечение Project Studio CS Отопление предназначено для проектирования систем отопления зданий и сооружений. В программе представлена расчетная (гидравлический и тепловой расчет системы водяного отопления по СНиП 41−01−2003) и графическая части раздела проектирования «Отопление» и автоматическое специфицирование.

Будучи приложением к AutoCAD, Project Studio CS Отопление позволяет загружать архитектурную подоснову любого формата, поддерживаемого этой системой (*.dwg-файлы, растровые изображения, OLE-объекты и т.д.), а при использовании Autodesk Architectural Desktop или AutoCAD Architecture — работать с *.dwg-файлами, созданными в этих программах.

Задачи

Интеллектуальные объекты Project Studio CS Отопление.
Открытые базы данных.
Работа с этажами, помещениями и стояками.
Гидравлический и тепловой расчет. Формирование трехмерной твердотельной модели системы отопления.

Возможности

Заглушка

Область применения

Программный продукт Project Studio CS Отопление включает в себя специализированные инструменты инженера-проектировщика отопительных систем. Из создаваемой модели систем отопления пользователь получает практически всю необходимую документацию: поэтажные планы систем отопления; аксонометрические схемы систем отопления; спецификацию оборудования; экспликацию помещений; общий отчет по проекту; …

Удобный интерфейс

Программа Project Studio CS Отопление имеет привычный интерфейс, что позволяет свести к минимуму сроки ее внедрения. Пользователь работает со стандартными выпадающими меню, панелями инструментов, командной строкой. Кроме того, в Project Studio CS Отопление реализованы сервисные функции создания моделей систем отопления, такие как контекстное меню, режимы отслеживания и объектной привязки и т.п.

Интеллектуальные объекты Project Studio CS Отопление

Все объекты Project Studio CS Отопление (трубопроводы, отопительные приборы, трубопроводная арматура и т.д.) являются интеллектуальными. Любой из объектов обладает характерными для этого элемента свойствами, которые в процессе проектирования можно редактировать. Для каждой группы элементов данные свойства имеют определенные характеристики. Для трубопроводов можно выбрать сортамент и типоразмер, дл…

Открытые базы данных

База данных Project Studio CS Отопление содержит около 6000 элементов отопительных систем. Представлены наиболее популярные в России отечественные и зарубежные производители отопительного оборудования, такие как Honeywell, Danfoss, Zetkama, VAN-TUBO, Wilo, Grundfos, ОАО «САНТЕХПРОМ», Global, «Джиель» и др. Все базы данных Project Studio CS Отопление открыты для пополнения пользователем. При этом …

Работа с этажами, помещениями и стояками

Существует возможность загрузить помещения через IFC-формат. Также инженер может самостоятельно определить контуры помещения как в автоматическом, так и в ручном режиме. Можно автоматически пронумеровать помещения, если это не было сделано ранее. А все характеристики и данные по всем этажам и помещениям выводятся в одном диалоговом окне Модель здания/объекта. Здесь же возможно изменить характерист…

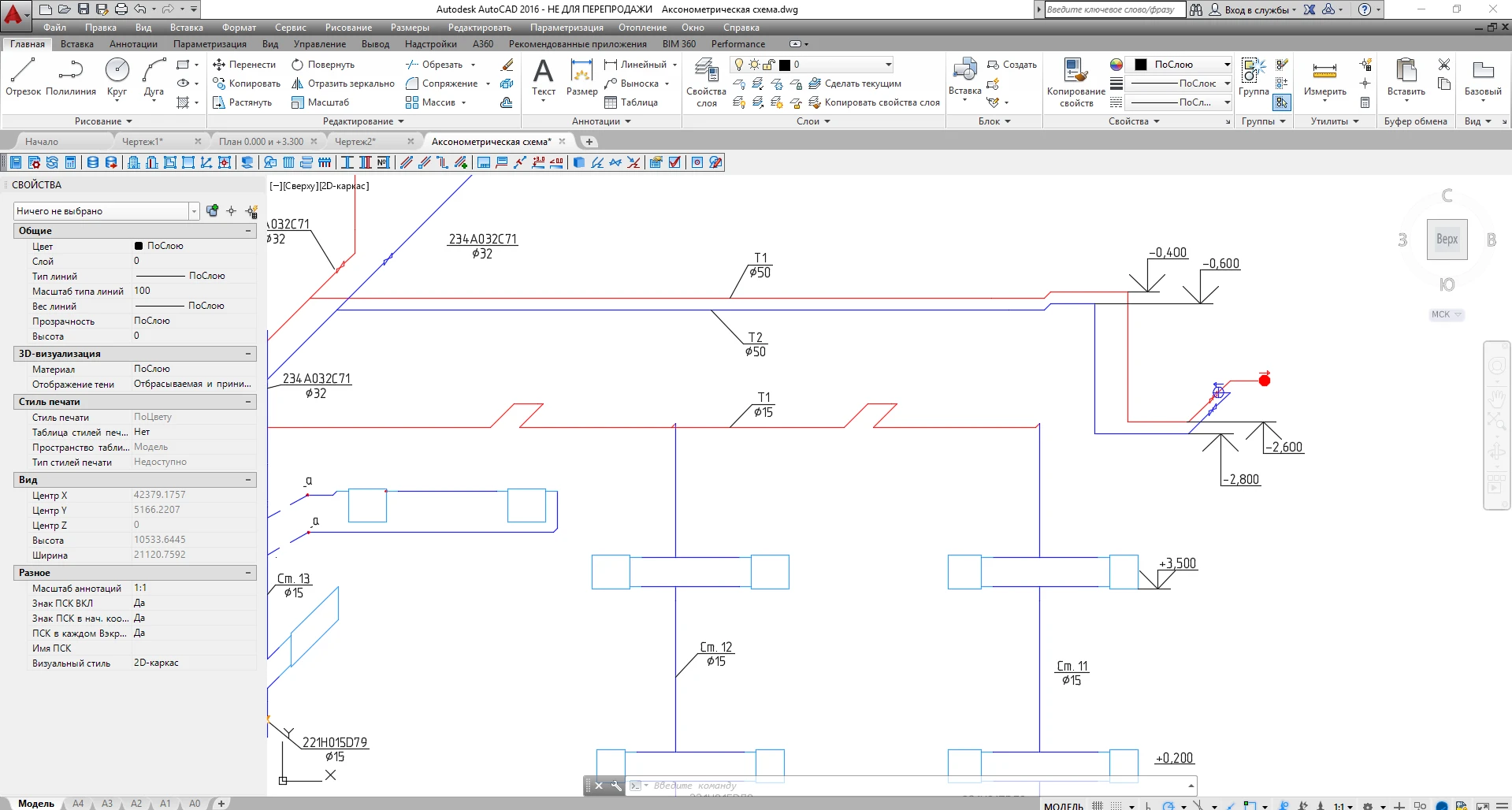
Гидравлический и тепловой расчет. Формирование трехмерной твердотельной модели системы отопления

При проведении расчета программа создает полную трехмерную модель системы отопления. Реализована возможность просматривать расчетные параметры в участках сети. На участках производится расчет тепловой нагрузки, расхода теплоносителя, скорости движения, потерь давления в трубах и на местных сопротивлениях, а по результатам этих расчетов осуществляется подбор диаметра труб и числа секций радиаторов.…

Оформление

Программа Project Studio CS Отопление полностью соответствует требованиям отечественных нормативных документов. Все табличные формы отвечают ГОСТ 21.602−2011 и ГОСТ 21.110−2013. Размещение на чертеже рамки с основной надписью осуществляется по ГОСТ Р 21.1101−2013. В программе реализован следующий функционал: уклон (информация берется с трубопровода), высотная отметка (автоматически считывающа…

Согласованность данных

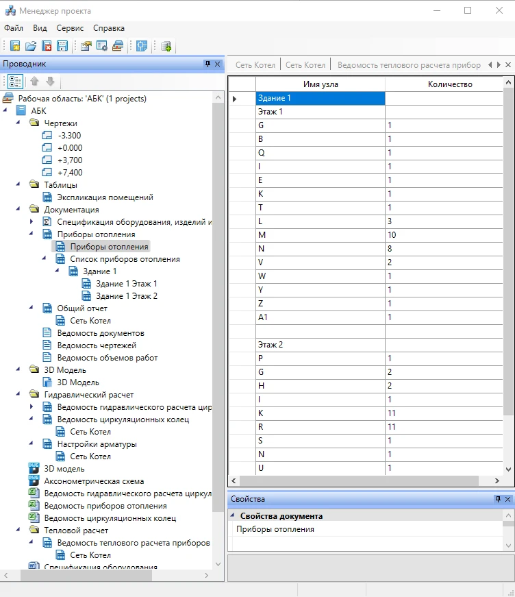
Для согласования данных в Project Studio CS Отопление используется специализированный Менеджер проекта. Все чертежи, спецификации и прочие документы проекта гарантированно относятся именно к текущему проекту Project Studio CS Отопление. Это позволяет получать точные спецификации оборудования. Кроме того, спецификация оборудования всегда соответствует текущему состоянию модели систем отопления. Та…

Экспликация помещений

Программа поддерживает возможность получения экспликации помещений и ее вывода в Word, Excel или в CAD-систему.

Таблица УГО

В программе реализовано автоматическое формирование таблицы УГО, используемых в проекте. Таблица формируется как для каждого этажа, так и для всего проекта.

Ведомости чертежей, документов и объемов работ

Реализовано получение в полуавтоматическом режиме ведомости рабочих чертежей основного комплекта по ГОСТ 21.101-97; ведомости ссылочных и прилагаемых документов по ГОСТ 21.101-97 и ведомости объемов строительных и монтажных работ по ГОСТ 21.111-84. Эти ведомости можно вывести в Word, Excel или в CAD-систему.

Общий отчет

В общий отчет выводятся основные параметры проекта, информация о теплоносителе, трубах и расчетные данные. Отчет обновляется при каждом запуске расчетов и может быть выведен в Word и Excel.

Ведомость циркуляционных колец, ведомость гидравлического расчета циркуляционных колец и настройки арматуры

Реализован гидравлический расчет систем водяного отопления по СП 60.13  330.2016 (гидравлический расчет главного циркуляционного кольца и гидравлический расчет второстепенных колец). В Менеджере проекта формируются отчеты «Ведомость гидравлического расчета циркуляционных колец» и «Ведомость циркуляционных колец». Обе ведомости можно вывести в Excel.

Ведомость теплового расчета приборов отопления

Реализован тепловой расчет систем отопления. В Менеджере проекта формируется ведомость теплового расчета приборов отопления, которую можно вывести в Excel.

Отчеты «Приборы отопления» и «Список приборов отопления»

В Project Studio CS Отопление предусмотрены отчеты «Приборы отопления» и «Список приборов отопления» с возможностью вывода по этажам. Эта функция позволяет заранее сообщить монтажникам, какие приборы и с какими обвязками потребуется доставить на определенный этаж, что поможет значительно ускорить монтаж системы отопления. Отчеты можно вывести в Excel.

Передача данных через IFC

Благодаря реализации экспорта в обменные файлы стандарта IFC, информационные модели инженерных систем, выполненные в программе, без каких-либо затруднений вливаются в общую информационную модель проектируемого объекта, реализуемую на любой BIM платформе, будь то ArchiCAD, Revit, Allplan или ещё какая-либо.

Конфигурации

Новые возможности

Исправлен ряд неточностей, собранных online-системой регистрации ошибок

Поддерживается возможность указать абсолютные координаты здания или сооружения при экспорте информационной модели в IFC, RBIM или *.dwg

Реализована поддержка СУБД PostgreSQL при выгрузке моделей в CADLib Модель и Архив

Включена поддержка актуальной версии CADLib Модель и Архив

Добавлена поддержка Autodesk AutoCAD 2022

Системные требования

Процессор

  • Минимальные требования: Intel Pentium IV и выше

Оперативная память

  • Минимальные требования: 4 Гб
  • Рекомендуемые требования: 16 Гб и выше

Видеоадаптер

  • Минимальные требования: графический процессор с поддержкой 3D-ускорения, объемом видеопамяти 2 Гб
  • Рекомендуемые требования: графический процессор с поддержкой 3D-ускорения, объемом видеопамяти 8 Гб (поддерживающий OpenGL 2.1 или DirectX 11)

Место на диске

  • Минимальные требования: 60 Гб
  • Рекомендуемые требования: 150 Гб и более

Разрешение экрана

  • Минимальные требования: 1024х768 px
  • Рекомендуемые требования: 1280х1024 px

Дополнительное оборудование

  • USB-порт (при установке программы с соответствующего носителя)
  • Мышь или другие устройства указания

Операционная система

  • Windows 7 (32-bit, 64-bit);
  • Windows 8 (32-bit, 64-bit);
  • Windows 10 (32-bit, 64-bit).

Дополнительное ПО

  • AutoCAD 2007/2008/2009/2010/2011/2012/2013/2014/2015/2016/2017/2018.
  • Autodesk Architectural Desktop 2007.
  • AutoCAD Architecture 2008/2009/2010/2011/2012/2013/2014/2015/2016/2017/2018.
  • Autodesk Building Systems 2007.
  • AutoCAD MEP 2008/2009/2010/2011/2012/2013/2014/2015/2016/2017/2018.

Дополнительное ПО

  • Microsoft Office 2003, 2007, 2010, 2013, 2016
  • OpenOffice.org 4.x
  • LibreOffice
  • Обозреватель Интернет

О разработчике

CSoft Development CSoft Development — российский разработчик инженерного программного обеспечения и технологий: САПР, BIM, комплексных решений для машиностроения, промышленного и гражданского строительства, архитектурного проектирования, землеустройства, электронного документооборота, обработки сканированных чертежей, векторизации и гибридного редактирования – с многолетним опытом работы на рынке. Компания создает уникальные решения для управления инженерными данными по российским нормам и стандартам. Предлагаемые компанией CSoft Development современные разработки на базе 2D- и 3D-технологий – Model Studio CS и CADLib Model и Архив, TDMS, AutomatiCS, MechaniCS и многие другие – позволяют проектным организациям автоматизировать выполнение множества повседневных задач, значительно повысить конкурентоспособность и культуру производства, открывают перспективы освоения новейших методик проектирования, позволяют решать задачи в области САПР на самом высоком уровне и с учетом российских реалий.

Мероприятия


+